2_____________0
____________...
תחרות תכנון המוצב הישראלי
כל ההגשות המועמדות, הזוכים ופרוטוקול השיפוט

תחרות תכנון המוצב הישראלי 2025 נולדה מתוך רגע של חשבון נפש מקצועי ולאומי. אירועי השנים האחרונות, וביתר שאת לאחר ה־7 באוקטובר, הציפו באופן כואב את הצורך לבחון מחדש את תפיסת המוצב הצה״לי לא רק כפתרון הנדסי לשהיית לוחמים, אלא כמקום מבוצר המסוגל להגן על עצמו ועל סביבתו, לספק סביבת חיים מכובדת למשרתים בו ולהשתלב היטב בנופי ארצנו הקטנה. המוצב, כטיפוס אדריכלי, כמעט ואינו זוכה לדיון ציבורי או מקצועי פתוח. לרוב הוא נתפס כפתרון הנדסי או צבאי גרידא. התחרות ביקשה לשנות נקודת מבט זו ולהעמיד את האדריכלות במרכז הדיון, מתוך הבנה שתכנון נכון משפיע באופן ישיר על יכולת ההגנה, התפקוד, החוסן האנושי והבטיחות של הלוחמים והלוחמות, כמו גם על הגנת המרחב האזרחי הסובב.

לתחרות הוגשו 17 הצעות, שנבחנו בהליך שיפוט מקצועי, רב־שלבי ומעמיק, על ידי צוות שופטים בכיר שכלל קצינים בכירים ואדריכלים בעלי ניסיון מבצעי ותכנוני. תהליך השיפוט כלל סיור אישי בין ההצעות, גיבוש קריטריונים מקצועיים, שני סבבי דיון, וחזרה ביקורתית גם להצעות שלא עלו לשלב הסופי, מתוך רצון כן לבחון את כלל הרעיונות והגישות. בין הקריטריונים המרכזיים שנבחנו: יכולת הגנה והדדיות בין עמדות, מניעת חדירה, שילוב בין מיגון לנוחות, יחס לסביבה ולטופוגרפיה, גמישות ומודולריות, שילוב טכנולוגיות, קיצור מרחקים בין אזורי מגורים לעמדות לחימה, ויכולת המוצב להגן לא רק על עצמו אלא גם על סביבתו. התחרות הוכיחה כי קיים ידע מקצועי עמוק, יצירתיות וחשיבה ביקורתית בקרב קהילת האדריכלים בישראל, גם ביחס לטיפוס תכנוני מורכב, רגיש וטעון כל כך. צוות השיפוט הדגיש כי אף אחת מן ההצעות אינה מוצר מוגמר, אך כולן יחד מרכיבות מאגר רעיונות עשיר, שממנו ניתן וראוי לשאוב בעת גיבוש טיפוס המוצב הצה״לי לעשורים הבאים.

התאחדות האדריכלים ובוני ערים בישראל מבקשת להביע תודה והוקרה לכל מי שלקח חלק ביוזמה, בהובלה ובמימוש תחרות תכנון המוצב הישראלי 2025. בראש ובראשונה תודה לאדריכל תמיר מנצור כרמל, קצין במילואים ויוזם התחרות, על חזון מקצועי ברור, על יוזמה אמיצה לפתוח שיח אדריכלי בתחום רגיש ומורכב, ועל הובלה עקבית של התהליך משלב הרעיון ועד לסיום הליך השיפוט. תודה מיוחדת ליו״ר צוות השיפוט, אלוף (מיל') גיורא איילנד, על הנהגה מקצועית, ראייה מערכתית רחבה והובלת דיון מעמיק, שקול ואחראי בתהליך השיפוט. תודה לחברי צוות השיפוט על תרומתם המקצועית, זמנם וניסיונם: אל״מ דוד שפירא, סא״ל (מיל') אדר' ד״ר שרי מרק, סא״ל אור בן יהודה, רס״ן (מיל') אדר' תמיר מנצור כרמל, רס״ן (מיל') ואדר' אריה גונן, מזכיר חבר השופטים. חברי הצוות הביאו לשולחן השיפוט שילוב ייחודי של ידע אדריכלי, ניסיון מבצעי וחשיבה ביקורתית, שאפשרו בחינה רצינית ומעמיקה של ההצעות. תודה ליו״ר התאחדות האדריכלים ובוני ערים בישראל, אדר' אורנה אנג'ל על הובלת המהלך מטעם ההתאחדות, על חיבור בין עולם האדריכלות לשיח הציבורי והמקצועי, ועל מחויבות מתמשכת לחיזוק מעמד האדריכלים ולקידום שיח תכנוני אחראי. תודה למנכ״לית ההתאחדות, אדר' סטפני אלקובי, על התמיכה והליווי בקידום תחרות תכנונית בעלת משמעות מקצועית ולאומית. 

תודה מיוחדת לנותני החסות של תחרות על תמיכתם ביוזמה מקצועית בעלת חשיבות ציבורית, ערכית ולאומית. חברת אקרשטיין, מהחברות המובילות בישראל בתחום מוצרי הבטון, הפיתוח והתשתיות, מלווה זה עשרות שנים פרויקטים ציבוריים, ביטחוניים ותשתיתיים ברחבי הארץ. מעורבותה בתחרות מבטאת מחויבות מתמשכת לאיכות הבנייה, לעמידות, לביצועים ארוכי טווח ולפיתוח פתרונות המתמודדים עם תנאי קצה. התמיכה בתחרות משקפת הבנה עמוקה של הקשר שבין תכנון אדריכלי איכותי לבין ביצוע אחראי, מדויק ובר־קיימא במרחבים מורכבים. חברת ניסים אליהו ובניו פועלת שנים רבות בתחום הבנייה, הפיתוח והביצוע, וצברה ניסיון עשיר בעבודה בפרויקטים מורכבים ורבי־אתגר. תמיכתה בתחרות מבטאת אמון בכוחה של חשיבה תכנונית מוקדמת, מעמיקה ורב־תחומית, כבסיס להקמת מערכות בנויות בטוחות, פונקציונליות ואנושיות. הבחירה לקחת חלק ביוזמה זו מדגישה תפיסה הרואה בתכנון איכותי מרכיב יסוד באחריות מקצועית ובתרומה לחוסן הלאומי. שותפותם של נותני החסות אפשרה את קיומה של התחרות ואת קידום השיח המקצועי שהיא מייצרת, ומהווה דוגמה לחיבור ראוי בין עולם התכנון, הביצוע והאחריות הציבורית.

ולבסוף, תודה לכל האדריכליות והאדריכלים שהגישו הצעות לתחרות. ההשקעה, הרצינות, העומק הרעיוני ורמת העבודות שהוגשו מעידים על קהילה מקצועית מחויבת, חושבת וביקורתית. כל אחת ואחת מן ההצעות תרמה לשיח, הרחיבה את גבולות החשיבה והעשירה את הדיון על עתיד המוצב הישראלי.

בהמשך לפרסום תוצאות התחרות והצגת כלל ההגשות, מתוכנן ערב עיון והענקת פרסים, אשר פרטיו המלאים יפורסמו בהמשך. ערב זה נועד להעמיק את הדיון המקצועי סביב ההצעות שהוגשו, לאפשר הצגה וניתוח של רעיונות תכנוניים, ולחזק את המפגש הישיר בין עולם האדריכלות לבין המערכת הצבאית. לערב העיון מתוכננת הגעתם של אנשי צבא, קצינים ואנשי מילואים, אשר ישמעו על ההצעות, תהליכי החשיבה והגישות השונות לתכנון מוצבים, וייקחו חלק בשיח פתוח עם המתכננים. במקביל, כבר במסגרת פעילות התחרות, התקיים מפגש מקצועי ביחידת הבינוי של פיקוד הדרום, שבו הוצגו התחרות והעבודות הזוכות בפני פורום קצינים בכירים, ובראשם תא״ל ארז אלקבץ, ראש מטה פיקוד הדרום. במהלך המפגש נדונו עקרונות וגישות לתכנון מוצבי צה״ל העתידיים, מתוך חיבור בין חשיבה אדריכלית, ניסיון מבצעי והצרכים העולים מן השטח.

התחרות עוררה עניין רב בקרב גורמים שונים במערכת הצה״לית, והפכה לנושא לדיון מקצועי רחב. לצד זאת, נכתבו כתבות רבות שעסקו בתחרות, בהצעות ובשאלות העקרוניות שהעלתה, ותרמו להרחבת השיח הציבורי והמקצועי על תפקיד האדריכלות במרחבים ביטחוניים. מהלכים אלו מבטאים את מטרת התחרות כהליך מתמשך, המבקש להשפיע מעבר לרגע ההכרזה, ולבסס פלטפורמה לשיח, למידה ופיתוח עתידי של תפיסת המוצב הצה״לי.

הזוכים
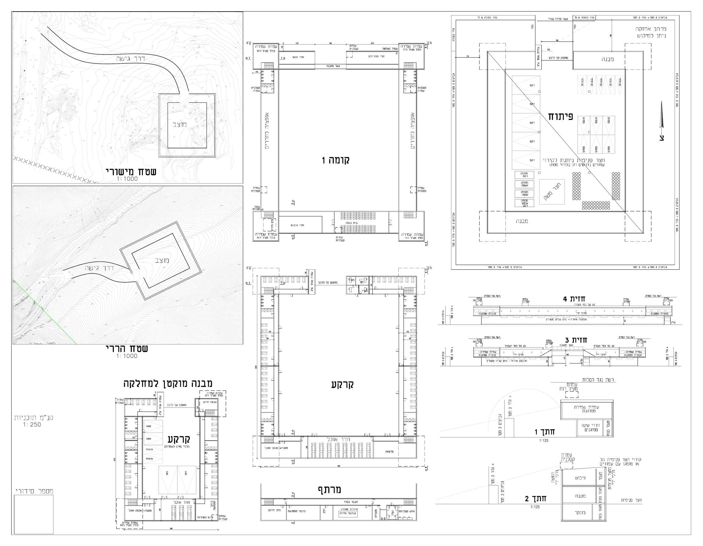
במקום הראשון : עבודה מספר 7
נקודת זינוק מבוצרת | מייזי אדריכלים - מייזי חזקיה, עומרי חדד, איתמר ששון, מיכה פייט
_____1______...
____-1-_____...
במקום השני: עבודה מספר 5
ונתתי לעם הזה לחומת נחשת בצורה | עמי גבירצמן אדריכלים
_____1______...
____-1-_____...
במקום השלישי: עבודה מספר 15
המוצב הצה״לי במאה ה-21 | שמואל נמט
_____1______...
____-1-_____...

כל המועמדים
עבודה מספר 1